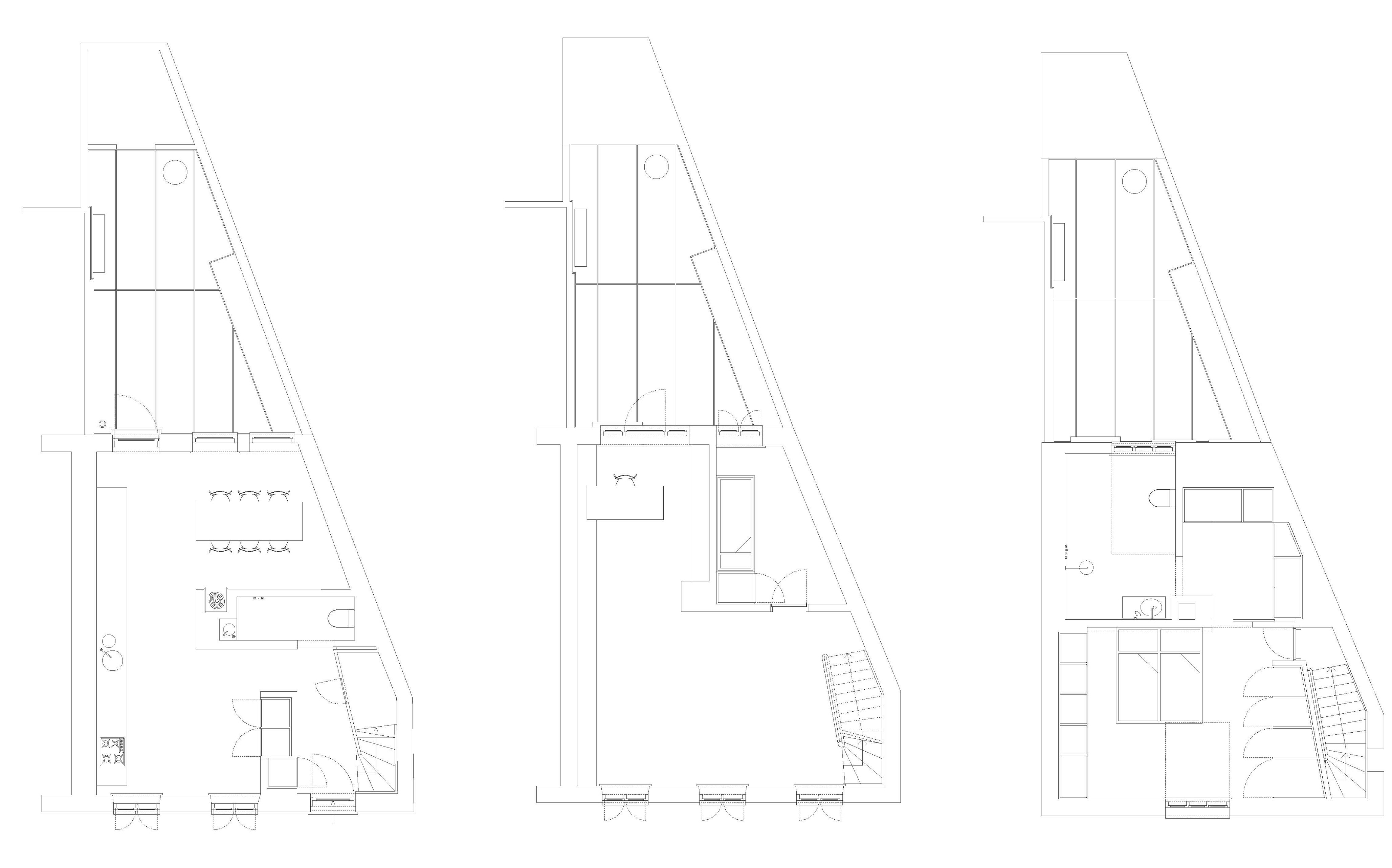
Transformation of townhouse in Copenhagen. The vernacular danish “rækkehus” was fully renovated with an attention to detail and use of materials in both traditional and experimental manner. The programme of the residence, spread over three floors, challenges the movement and attention of its inhabitants. Objects are directly inserted as gathering points, integrated lumps of mass and matter, within the architecture of the spaces. A stairway, central to most spaces of the house, co nnects all floors while whirling movements of both bodies and light. KM Krusemynte house is an embodiment of RSSAA and our sense of belonging that is shared between Italy and Denmark, influencing our understanding and use of especially two main materials - wood and stone. We work with materials through a critical approach to sourcing, extracting and consuming of natural resources, when building and re-building dwellings and spaces to gather. On the occasion of the commission of KM Krusemynte house, RSSAA created our third full object series (OS), with sculptural pieces tailored to the space, like the BE01 Bench, the LS08, LS09 and LS10 lamps, while experimenting with the use and combination of materials such as wood, steel, stone and paper. At the top floor, the second bathroom of the house has been made into one generous space, covered in recuperated serpentine marble from Trani in Puglia. The sink is a sculptural piece carved from a block of Lavic stone from Etna in Sicily, carried by cherry wood.



























